トップページ > ジークレフ新神戸タワー

販売物件情報

  • お気に入りリストを見る
  • 物件情報を印刷する
  • プリンタの設定で「背景を印刷する」と設定しないと「背景画像」が印刷されないことがあります。印刷の際には、必ず「背景を印刷する」設定にしてください。
中古マンション

ジークレフ新神戸タワー

画像

  • 24時間ゴミ出しOKで便利

  • 廊下+居室に収納有り収納豊富

この物件のお支払い例

物件価格
4,600万円
月々の支払い

頭金/ボーナス払い0円

118,910

※上記支払例の借入条件:金利0.475%、借入総額4,600万円、借入期間35年

中古+リノベーションのお支払い例

プラン
頭 金 万円

月々のお支払い135,750

ボーナス払い0円

※上記支払例の借入条件:金利0.475%、借入総額5,251万円、借入期間35年

※専有面積が60㎡未満の物件の場合、定額制となります。

セールスポイント

☆24時間ゴミ出しOKで便利
☆ペット飼育可能(管理規約有り)
☆市営地下鉄新神戸駅まで徒歩2分の好立地


所在地・交通

所在地 神戸市中央区熊内町7丁目6-1 ジークレフ新神戸タワー1209
最寄駅 神戸市営地下鉄西神山手線 新神戸 徒歩分数 2分
最寄バス停 徒歩分数
小学校校区 神戸市立雲中小学校 中学校校区 神戸市立葺合中学校

※学校区は住所から自動判定したものであり、保証できる情報ではございません。正確な学校区はお問い合わせ下さい。

お問い合わせフォームはこちら

「人型アイコン」を地図上にドラッグすることで『Google Street View』に切り替わります。

※地図上の「対象地」は「日本、〒651-0056 兵庫県神戸市中央区熊内町7丁目6−1」の場所を指しています。実際の場所ではない場合がございます。詳しくはお問い合わせください。

お問い合わせフォームはこちら

物件概要

価格 4,600万円 種目 中古マンション
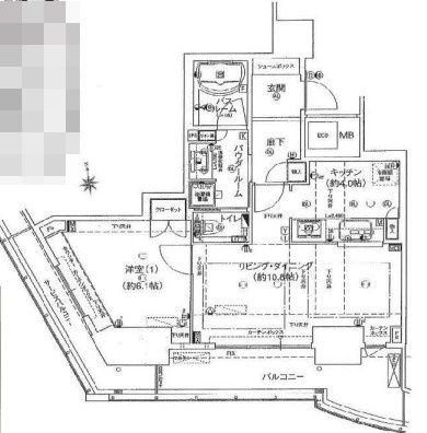
間取り 1LDK 間取り内訳 LDK10.8畳×1室 洋6.1畳×1室
専有面積 50.62㎡ 建物構造 RC
バルコニー面積 10.5㎡ 向き
階数 42階建 所在階
築年月(竣工月) 2009年6月 駐車場有無 空有
駐車場料金 総戸数
管理費 11,650円 積立金 12,650円
土地権利 所有権 管理形態/方式 管理会社に全部委託/日勤
用途地域 商業地域
現況 空家 取引態様 媒介
建築確認番号

取引条件等

引渡し 即時

その他

設備 システムキッチン、カウンターキッチン、収納スペース、給湯、室内洗濯機置場、エレベーター、宅配BOX、床暖房、オートロック、モニタ付インターホン、防犯カメラ、24時間セキュリティー、バイク置き場、駐輪場、徒歩10分圏内で小学校・スーパー・公園有り、固定費275円/月
特徴 日当り良好、角部屋、オール電化、外観タイル張り、免震構造、通風・眺望良好、コンシェルジュサービス付き、スカイラウンジ・ゲストルーム・パーティルームなど共用施設充実
諸条件・相談 ペット可、管理規約有り
情報登録日 2024年5月17日 情報更新予定日 2025年12月30日
物件番号 61409
最近見た物件

ページの先頭へ