トップページ > コスモ芦屋川シーサイドテラス

販売物件情報

  • お気に入りリストを見る
  • 物件情報を印刷する
  • プリンタの設定で「背景を印刷する」と設定しないと「背景画像」が印刷されないことがあります。印刷の際には、必ず「背景を印刷する」設定にしてください。
中古マンション

コスモ芦屋川シーサイドテラス

画像

  • 2025年6月リノベーション済み物件(アフターサービス保証付き)

  • トランクルーム+リビング+床下収納+各居室に収納有り収納豊富

この物件のお支払い例

物件価格
2,790万円
月々の支払い

頭金/ボーナス払い0円

72,121

※上記支払例の借入条件:金利0.475%、借入総額2,790万円、借入期間35年

中古+リノベーションのお支払い例

プラン
頭 金 万円

月々のお支払い97,272

ボーナス払い0円

※上記支払例の借入条件:金利0.475%、借入総額3,762万円、借入期間35年

※専有面積が60㎡未満の物件の場合、定額制となります。

セールスポイント

☆2025年6月リノベーション済み物件(アフターサービス保証付き)
☆1階なので子供の飛び跳ねOK
☆約10㎡の専用庭付き300円/月


所在地・交通

所在地 神戸市東灘区深江南町1丁目1-64 コスモ芦屋川シーサイドテラス117
最寄駅 阪神本線 芦屋 徒歩分数 13分
最寄バス停 徒歩分数
小学校校区 神戸市立東灘小学校 中学校校区 神戸市立本庄中学校

※学校区は住所から自動判定したものであり、保証できる情報ではございません。正確な学校区はお問い合わせ下さい。

お問い合わせフォームはこちら

「人型アイコン」を地図上にドラッグすることで『Google Street View』に切り替わります。

※地図上の「対象地」は「日本、〒658-0022 兵庫県神戸市東灘区深江南町1丁目1−64」の場所を指しています。実際の場所ではない場合がございます。詳しくはお問い合わせください。

お問い合わせフォームはこちら

物件概要

価格 2,790万円(↓12.5%値下がり 種目 中古マンション
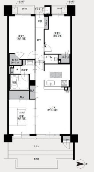
間取り 3LDK 間取り内訳
専有面積 75.6㎡ 建物構造 RC
バルコニー面積 9.15㎡ 向き
階数 6階建 所在階 1階
築年月(竣工月) 2000年8月 駐車場有無
駐車場料金 総戸数 93
管理費 8,700円 積立金 18,140円
土地権利 所有権 管理形態/方式 管理会社に全部委託/日勤
用途地域 第一種中高層住居専用地域
現況 空家 取引態様 媒介
建築確認番号

取引条件等

引渡し 相談

その他

設備 温水洗浄便座、浴室乾燥機、システムキッチン、カウンターキッチン、浄水器、食器洗浄乾燥機、収納スペース、ウォークインクローゼット、床下収納、トランクルーム、室内洗濯機置場、エレベーター、洗髪洗面化粧台、照明器具、都市ガス、宅配BOX、床暖房、BS端子、CATV、インターネット、オートロック、モニタ付インターホン、専用庭、テラス、バイク置き場、駐輪場、トランクルーム+リビング+床下収納+各居室に収納有り、各居室に窓有り、堀こたつ有り、阪神芦屋駅まで徒歩13分
特徴 外観タイル張り
諸条件・相談
情報登録日 2025年8月28日 情報更新予定日 2025年12月13日
物件番号 77799
最近見た物件

ページの先頭へ