トップページ > サンヴェール芦屋翠ヶ丘

販売物件情報

  • お気に入りリストを見る
  • 物件情報を印刷する
  • プリンタの設定で「背景を印刷する」と設定しないと「背景画像」が印刷されないことがあります。印刷の際には、必ず「背景を印刷する」設定にしてください。
中古マンション

サンヴェール芦屋翠ヶ丘

画像

  • 1階なので子供の飛び跳ねOK

  • 廊下+各居室に収納有り収納豊富

この物件のお支払い例

物件価格
5,480万円
月々の支払い

頭金/ボーナス払い0円

141,658

※上記支払例の借入条件:金利0.475%、借入総額5,480万円、借入期間35年

中古+リノベーションのお支払い例

プラン
頭 金 万円

月々のお支払い166,473

ボーナス払い0円

※上記支払例の借入条件:金利0.475%、借入総額6,439万円、借入期間35年

※専有面積が60㎡未満の物件の場合、定額制となります。

セールスポイント

☆1階なので子供の飛び跳ねOK
☆廊下+各居室に収納有り収納豊富
☆2026年2月中旬リフォーム完工予定


所在地・交通

所在地 芦屋市翠ケ丘町7-21 サンヴェール芦屋翠ヶ丘103
最寄駅 東海道線 芦屋 徒歩分数 13分
最寄バス停 徒歩分数
小学校校区 芦屋市立岩園小学校 中学校校区 芦屋市立山手中学校

※学校区は住所から自動判定したものであり、保証できる情報ではございません。正確な学校区はお問い合わせ下さい。

お問い合わせフォームはこちら

「人型アイコン」を地図上にドラッグすることで『Google Street View』に切り替わります。

※地図上の「対象地」は「〒659-0014 兵庫県芦屋市翠ケ丘町7−21 サンヴェール芦屋翠ケ丘」の場所を指しています。実際の場所ではない場合がございます。詳しくはお問い合わせください。

お問い合わせフォームはこちら

物件概要

価格 5,480万円 種目 中古マンション
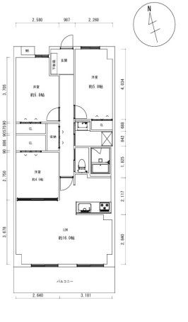
間取り 3LDK 間取り内訳
専有面積 74.59㎡ 建物構造 RC
バルコニー面積 8.7㎡ 向き
階数 6階建 所在階 1階
築年月(竣工月) 1996年11月 駐車場有無
駐車場料金 総戸数 20
管理費 15,100円 積立金 19,770円
土地権利 所有権 管理形態/方式 管理会社に全部委託/
用途地域 無指定
現況 空家 取引態様 媒介
建築確認番号

取引条件等

引渡し 相談

その他

設備 温水洗浄便座、追焚機能、浴室乾燥機、システムキッチン、カウンターキッチン、食器洗浄乾燥機、収納スペース、給湯、室内洗濯機置場、エレベーター、都市ガス、宅配BOX、オートロック、モニタ付インターホン、駐輪場、阪神打出駅まで徒歩12分、JR芦屋駅まで徒歩13分、阪急夙川駅まで徒歩16分
特徴 日当り良好、外観タイル張り
諸条件・相談
情報登録日 2025年12月14日 情報更新予定日 2025年12月28日
物件番号 81803
最近見た物件

ページの先頭へ