トップページ > ベイシティータワーズ神戸WEST

販売物件情報

  • お気に入りリストを見る
  • 物件情報を印刷する
  • プリンタの設定で「背景を印刷する」と設定しないと「背景画像」が印刷されないことがあります。印刷の際には、必ず「背景を印刷する」設定にしてください。
中古マンション

ベイシティータワーズ神戸WEST

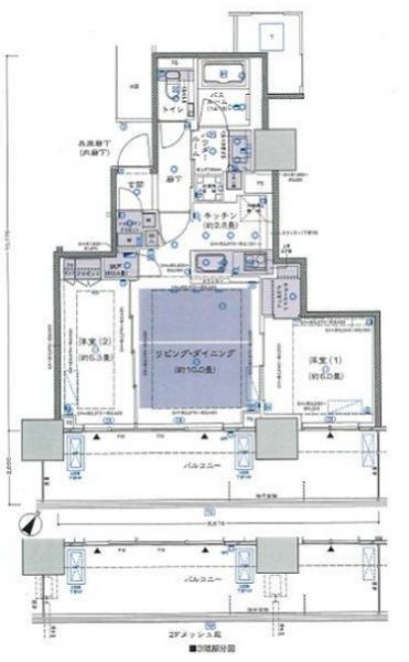
画像

  • 2023年2月築の築浅マンション

  • キッチン+洗面室+各居室に収納有り収納豊富

この物件のお支払い例

物件価格
8,800万円
月々の支払い

頭金/ボーナス払い0円

227,480

※上記支払例の借入条件:金利0.475%、借入総額8,800万円、借入期間35年

中古+リノベーションのお支払い例

プラン
頭 金 万円

月々のお支払い246,446

ボーナス払い0円

※上記支払例の借入条件:金利0.475%、借入総額9,533万円、借入期間35年

※専有面積が60㎡未満の物件の場合、定額制となります。

セールスポイント

☆2023年2月築の築浅マンション・ペット飼育可能(管理規約有り)
☆各フロアにクリーンステーション設置・24時間ゴミ出しOKで便利
☆24時間オンラインセキュリティシステム導入(セコム)


所在地・交通

所在地 神戸市中央区新港町13-8 ベイシティータワーズ神戸WEST
最寄駅 東海道線 元町 徒歩分数 13分
最寄バス停 徒歩分数
小学校校区 神戸市立こうべ小学校 中学校校区 神戸市立神戸生田中学校

※学校区は住所から自動判定したものであり、保証できる情報ではございません。正確な学校区はお問い合わせ下さい。

お問い合わせフォームはこちら

「人型アイコン」を地図上にドラッグすることで『Google Street View』に切り替わります。

※地図上の「対象地」は「日本、〒650-0041 兵庫県神戸市中央区新港町13−8」の場所を指しています。実際の場所ではない場合がございます。詳しくはお問い合わせください。

お問い合わせフォームはこちら

物件概要

価格 8,800万円 種目 中古マンション
間取り 2LDK 間取り内訳
専有面積 57.01㎡ 建物構造 RC
バルコニー面積 向き
階数 25階建 所在階 7階
築年月(竣工月) 2023年2月 駐車場有無
駐車場料金 総戸数
管理費 21,720円 積立金 6,670円
土地権利 所有権 管理形態/方式 管理会社に全部委託/
用途地域 商業地域
現況 空家 取引態様 媒介
建築確認番号

取引条件等

引渡し 相談

その他

設備 システムキッチン、カウンターキッチン、収納スペース、ウォークインクローゼット、室内洗濯機置場、エレベーター、宅配BOX、24時間セキュリティー、ルーフバルコニー、駐輪場、キッチン+洗面室+各居室に収納有り、各居室6帖以上、各居室に窓有り、JR元町駅まで徒歩13分、市営地下鉄旧居留地駅まで徒歩10分、阪急&阪神神戸三宮駅まで徒歩15分
特徴 日当り良好、眺望良好、コンシェルジュサービス付き、フィットネス・ゲスト・フィットネスルーム等共用施設充実
諸条件・相談 ペット可、管理規約有り
情報登録日 2026年2月8日 情報更新予定日 2026年4月22日
物件番号 83635
最近見た物件

ページの先頭へ